Nieuw in verkoop:Eikelkamp 13, 3829 GD Hooglanderveen - Foto
Nieuw in verkoop
+47

Eikelkamp 13 3829 GD Hooglanderveen € 625.000,- k.k.

  • Eengezinswoning
  • 6 kamers
  • 5 slaapkamers
  • Bouwjaar 2011
  • 204 m² perceeloppervlakte
  • 119 m² gebruiksoppervlakte
  • A Energielabel A

Beschrijving

Ruime hoekwoning met 5 slaapkamers, energielabel A en heerlijke tuin met overkapping!

Op een mooie plek in Hooglanderveen staat deze verzorgde en verrassend ruime hoekwoning met maar liefst vijf slaapkamers, een heerlijke achtertuin met overkapping en een vrijstaande berging. Een ideaal gezinshuis voor wie op zoek is naar ruimte, comfort en een fantastische buurt. De woning is gebouwd in 2011 en heeft een woonoppervlakte van circa 119 m2. Dankzij de hoekligging geniet je van extra privacy, veel lichtinval en een ruime tuin. De woning is door de jaren heen netjes onderhouden en heeft een moderne, verzorgde uitstraling. Hier kun je als koper direct wonen, spullen mee en verhuizen maar!

Indeling:
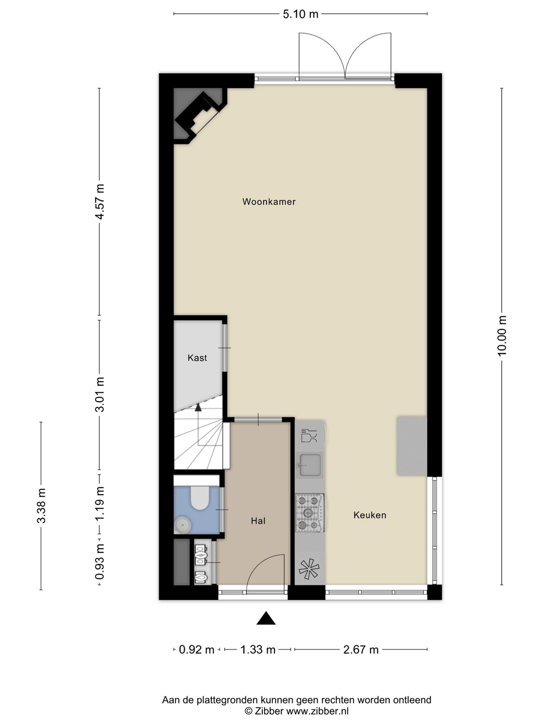
Bij binnenkomst tref je een nette hal met toilet, meterkast en trapopgang. De tuingerichte woonkamer is heerlijk licht en voelt ruim aan. De gashaard zorgt voor extra sfeer en maakt het een fijne plek om thuis te komen. Via de grote openslaande deuren loop je zo de achtertuin in, waardoor binnen en buiten mooi in elkaar overlopen. De begane grond is bovendien voorzien van vloerverwarming. Aan de voorzijde van de woning bevindt zich de open keuken. Deze is uitgevoerd in een lichte kleurstelling en voorzien van diverse inbouwapparatuur. Vanuit het keukenraam heb je prettig zicht op de straat en de buurt.
Op de eerste verdieping zijn drie goede slaapkamers en een nette badkamer aanwezig. De badkamer is compleet uitgevoerd met douche, wastafelmeubel en toilet. In de badkamer is elektrische vloerverwarming aanwezig.
Op de tweede verdieping bevinden zich nog eens twee slaapkamers, waardoor deze woning in totaal beschikt over vijf volwaardige slaap-/werkkamers. Ideaal voor grotere gezinnen, thuiswerkers of kopers die extra hobby en/of logeerruimte zoeken.
De achtertuin is netjes aangelegd en biedt volop ruimte om te genieten van het buitenleven. De grote overkapping maakt dat je hier al vroeg in het voorjaar en tot laat in het seizoen fijn buiten kunt zitten. Achterin de tuin staat nog een vrijstaande berging, handig voor fietsen, tuinspullen en gereedschap.

Ook op het gebied van duurzaamheid zit het goed. De woning beschikt over energielabel A, HR++ beglazing, gevel-, dak- en vloerisolatie vanuit de bouw en een Intergas Kompakt HRE CV-ketel.
Hooglanderveen is een geliefde woonomgeving met een dorps karakter en toch alle voorzieningen binnen handbereik. Winkels, scholen, sportvoorzieningen, station Vathorst en uitvalswegen richting de A1 en A28 zijn allemaal goed bereikbaar. Een heerlijke plek om te wonen.

Bijzonderheden:
- bouwjaar 2011
- tuingerichte woonkamer met gashaard
- vloerverwarming op de begane grond, elektrische vloerverwarming in de badkamer
- grote overkapping
- energielabel A

De meetinstructie is gebaseerd op de NEN 2580. Deze meetinstructie is bedoeld om een meer eenduidige manier van meten toe te passen voor het geven van een indicatie van de gebruiksoppervlakte. De meetinstructie sluit verschillen in meetuitkomsten niet volledig uit, bijvoorbeeld door interpretatieverschillen, afrondingen of beperkingen bij het uitvoeren van de meting. Alle verstrekte informatie moet worden beschouwd als een uitnodiging tot het doen van een bod of om in onderhandeling te treden.

Aan deze woninginformatie kunnen geen rechten worden ontleend.

Kaart

Kenmerken

Overdracht

Vraagprijs
€ 625.000,- k.k.
Status
Nieuw in verkoop
Aanvaarding
In overleg
Aangeboden sinds
Maandag 13 april 2026

Bouw

Type object
Eengezinswoning, woonhuis, hoekwoning
Soort bouw
Bestaande bouw
Bouwjaar
2011

Oppervlaktes en inhoud

Perceeloppervlakte
204 m²
Woonoppervlakte
119 m²
Woonkameroppervlakte
26 m²
Inhoud
422 m³
Oppervlakte externe bergruimte
6 m²
Tuinoppervlakte
105 m²

Indeling

Aantal bouwlagen
1
Aantal kamers
6 (waarvan 5 slaapkamers)

Locatie

Ligging
In woonwijk

Tuin

Type
Achtertuin
Hoofdtuin
Ja
Oriëntering
West
Heeft een achterom
Ja
Staat
Normaal
Tuin 2 - Type
Achtertuin
Tuin 2 - Staat
Normaal
Tuin 3 - Type
Voortuin
Tuin 3 - Staat
Normaal

Energieverbruik

Energielabel
A

CV ketel

CV ketel
Intergas Kompakt HRE
Warmtebron
Gas
Bouwjaar
2011
Eigendom
Eigendom

Uitrusting

Warm water
CV-ketel
Verwarmingssysteem
Centrale verwarming
Gashaard
Vloerverwarming (gedeeltelijk)
Badkamervoorzieningen
Inloopdouche
Toilet
Wastafel
Wastafelmeubel
Tuin aanwezig
Ja
Heeft schuur/berging
Ja
Heeft ventilatie
Ja

Kadastrale gegevens

Kadastrale aanduiding
Hoogland C 1691
Perceeloppervlakte
204 m²
Omvang
Geheel perceel
Eigendomsituatie
Eigen grond