Nieuw in verhuur:Brinklaan, 7311 JD Apeldoorn - Foto
Nieuw in verhuur
+9

Brinklaan 7311 JD Apeldoorn € 1.295,- /mnd

  • Appartement
  • 2 kamers
  • 1 slaapkamer(s)
  • 1 badkamer
  • Bouwjaar 2022
  • 94 m² gebruiksoppervlakte
  • Gestoffeerd
  • A++ Energielabel A++

Beschrijving

HET IS NIET MEER MOGELIJK EEN BEZICHTIGING IN TE PLANNEN, DEZE IS VOLGEPLAND
Wil jij de nieuwe bewoner zijn van een in 2022 opgeleverd, zeer ruim appartement gelegen aan het Catharina Amaliapark? Het appartement heeft een tuin en een PARKEERPLAATS. Dat allemaal in het centrum van Apeldoorn.

Dit appartement met aparte slaapkamer, tuin, berging en parkeerplaats is gelegen aan de parkzijde en binnenkort weer beschikbaar. Je loopt letterlijk je deur uit en staat in de stad. Het appartement heeft hoge plafonds met grote raampartijen en heeft hierdoor veel lichtinval. Ook heeft de woning een inpandige berging en er is een gemeenschappelijk dakterras en binnentuin gerealiseerd. Uniek in Apeldoorn!!

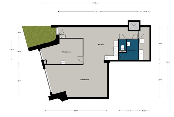
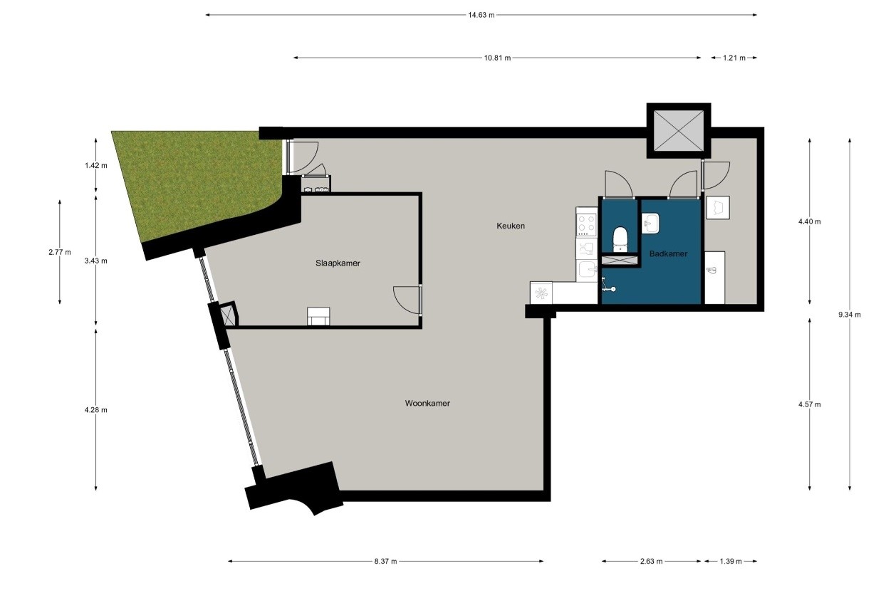
Indeling:
Via de tuin komt je binnen in de ruime woonkamer welke toegang geeft tot alle vertrekken. Open keuken welke van alle gemakken is voorzien. Ruime badkamer met mooi tegelwerk, inloopdouche en wastafel. Separaat toilet en inpandige berging met aansluiting voor de wasmachine en droger. De woning beschikt over een tuin aan de parkzijde van ca. 9 m².

Wonen in de Brinkhof is wakker worden met uitzicht over het Catharina Amaliapark, de drukte opzoeken in het centrum, snuffelen in de diverse winkels en boetiekjes, genieten van alles dat de horeca te bieden heeft, op zaterdag boodschappen doen op het marktplein of uitwaaien op de Veluwe. In het appartementencomplex is een gezamenlijk dakterras en binnentuin gerealiseerd.

Opleverniveau:
Volledig gestoffeerd opgeleverd met een PVC vloer, hoge plinten en raambekleding. Keuken met koelkast, vaatwasser, combi-oven magnetron, inductiekookplaat en voldoende kastruimte. De wanden zijn wit afgewerkt en de badkamer is voorzien van ruime inloopdouche, wastafel met mengkraan en spiegel voorzien van verlichting.

Bijzonderheden:
- Het huren van een parkeerplaats a € 95,- per maand is VERPLICHT
- Gemeenschappelijk dakterras en binnentuin, UNIEK!
- Gunning eigenaar
- De servicekosten inclusief afschrijving stoffering en warmte voorschot bedraagt € 200,-
- De huurprijs inclusief servicekosten, parkeerplaats en voorschot aan warmtekosten bedraagt dan ook € 1590,-
- De waarborgsom bedraagt één maand kale huur
- De foto's zijn ter impressie. De indeling van dit appartement is anders (zie plattegrond)

Nieuwsgierig naar deze woning of wil je meer informatie over andere woningen? Neem contact op met RvE Wonen via info@rvewonen.nl

*Aan deze advertentie kunnen geen rechten worden ontleend

Kaart

Kenmerken

Overdracht

Referentienummer
00165
Huurprijs
€ 1.295,- per maand
Borg
€ 1.295,-
Servicekosten
€ 75,- per maand
Verwarming
€ 125,- per maand
Inrichting
Ja
Inrichting
Gestoffeerd
Status
Nieuw in verhuur
Aanvaarding
Per zondag 1 februari 2026
Aangeboden sinds
Dinsdag 30 december 2025
Laatste wijziging
Maandag 5 januari 2026

Bouw

Type object
Appartement, benedenwoning
Soort bouw
Bestaande bouw
Bouwperiode
2022
Isolatievormen
HR-glas

Oppervlaktes en inhoud

Woonoppervlakte
94 m²
Inhoud
300 m³

Indeling

Aantal bouwlagen
1
Aantal kamers
2 (waarvan 1 slaapkamer)
Aantal badkamers
1 (en 1 apart toilet)

Tuin

Type
Achtertuin

Energieverbruik

Energielabel
A++

Uitrusting

Warm water
Elektrische boiler
Verwarmingssysteem
Blokverwarming
Heeft een lift
Ja
Tuin aanwezig
Ja

Media

Foto's

Plattegronden